B'AIRES /44 sq m /23'
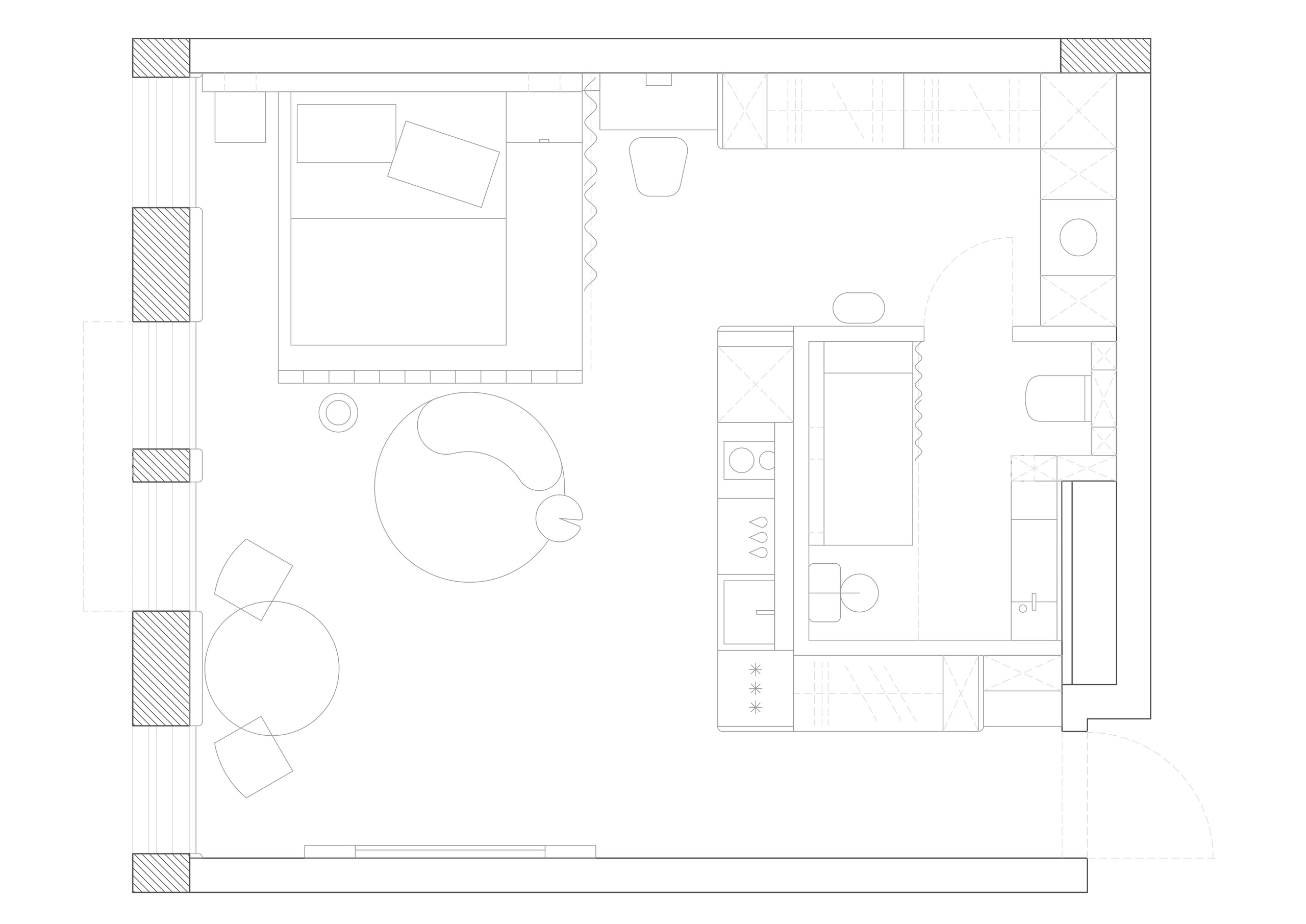
// проект разработан для яркой молодой женщины, профессия которой связана с индустрией моды. на небольшой площади в 44 квадратных метра эргономично размещены: прихожая, спальня, гостиная, кухня, вместительная гардеробная совмещенная с хоз блоком и просторный санузел. все зоны размещены вокруг «черного куба» — санузла, поэтому во все помещения, кроме него, свободно проникает солнечный свет, создавая ощущение простора и уюта.









































