SOLE HILLS /70 sq m /23'
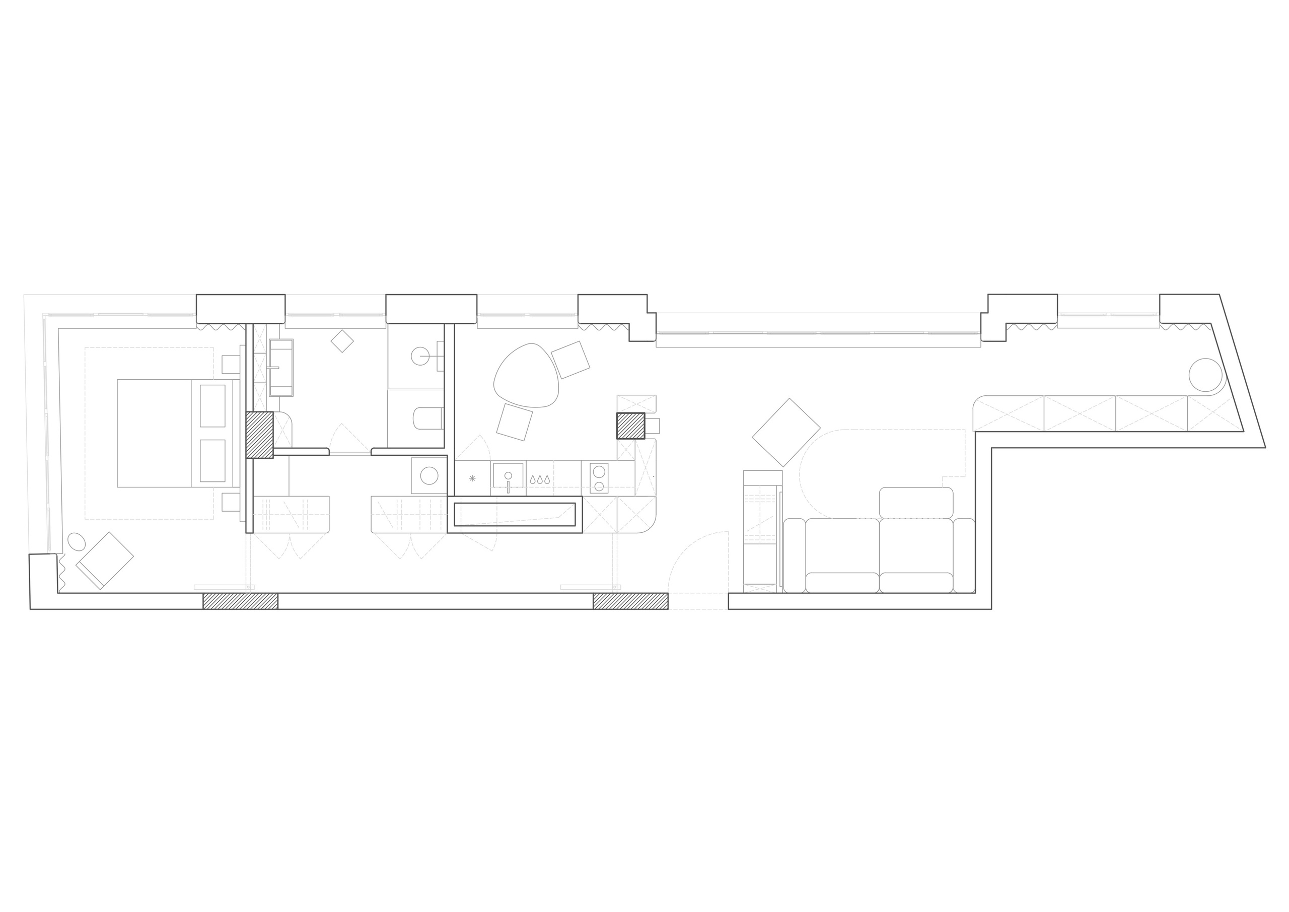
// апартаменты для женщины на Цветном Бульваре (MSC) на площади в 70 квадратных метров мы разместили все необходимые для комфортной жизни зоны, по-максимуму раскрывая потенциал сложного, сильно вытянутого пространства. мы сохранили просматриваемыми большинство панорамных окон в общей зоне так, что апартаменты выглядят очень просторными и светлыми. приватную зону спальни отделили через зону скрытого хоз блока и санузла. наша планировка позволяет естественному свету проникать во все помещения апартаментов. натуральные отделки теплых оттенков и бархатистые фактуры обивок и текстиля делают пространство уютным и камерным.

























